Hot Works Permit Template
Hot Works Permit Template - In illinois a person may not work at most types of jobs before the age of. Web look for the following fields on templates for hot work permits: Web this general permit to work template covers the entire permit to work. Web the following hot work program provides written procedures to help prevent the. Web what is a hot work permit? Web hot work permit to work template. Web use our downloadable hot work permit template to streamline hot work permit. Web a template for a hot work permit, applicable to all operations involving flame, sparks, hot. Hot work includes forging, extrusion, hot rolling,. Web this hot work permit is required for any operation involving open flame or producing. Web a template for a hot work permit, applicable to all operations involving flame, sparks, hot. Web the following hot work program provides written procedures to help prevent the. Web sample hot work permit for cutting or welding. Web look for the following fields on templates for hot work permits: Web use our downloadable hot work permit template to streamline. Web what is a hot work permit? In illinois a person may not work at most types of jobs before the age of. Web to begin the process of seeking a minor work permit, the parent/guardian. This hot work permit is required for any operation. Web look for the following fields on templates for hot work permits: Web what is a hot work permit? Web use our downloadable hot work permit template to streamline hot work permit. Uic hot work permit form. Web a hot work permit protects the people involved in any hot work activity. Web to begin the process of seeking a minor work permit, the parent/guardian. Web this general permit to work template covers the entire permit to work. Web a hot work permit protects the people involved in any hot work activity. Web the following hot work program provides written procedures to help prevent the. Hot work includes forging, extrusion, hot rolling,. This hot work permit is required for any operation. Web a template for a hot work permit, applicable to all operations involving flame, sparks, hot. Web use our downloadable hot work permit template to streamline hot work permit. Download free hot work permit templates to inspect the work area, verify the equipment, and ensure the safety precautions before and after hot work. In illinois a person may not work. Web to begin the process of seeking a minor work permit, the parent/guardian. Web a template for a hot work permit, applicable to all operations involving flame, sparks, hot. Web use our downloadable hot work permit template to streamline hot work permit. Web look for the following fields on templates for hot work permits: Web this hot works permit template. Web this general permit to work template covers the entire permit to work. Web a template for a hot work permit, applicable to all operations involving flame, sparks, hot. Web what is a hot work permit? Web look for the following fields on templates for hot work permits: Web hot work permit to work template. Web use our downloadable hot work permit template to streamline hot work permit. Web hot work permit to work template. Download free hot work permit templates to inspect the work area, verify the equipment, and ensure the safety precautions before and after hot work. Web a hot work permit protects the people involved in any hot work activity. Web download. Web sample hot work permit for cutting or welding. Web hot work permit to work template. Web a template for a hot work permit, applicable to all operations involving flame, sparks, hot. In illinois a person may not work at most types of jobs before the age of. Web this general permit to work template covers the entire permit to. Web a template for a hot work permit, applicable to all operations involving flame, sparks, hot. Web look for the following fields on templates for hot work permits: Web to begin the process of seeking a minor work permit, the parent/guardian. In illinois a person may not work at most types of jobs before the age of. Web download a. Web use our downloadable hot work permit template to streamline hot work permit. Web a template for a hot work permit, applicable to all operations involving flame, sparks, hot. Web sample hot work permit for cutting or welding. Web this hot works permit template is free to use and makes completing and approving hot. Web the following hot work program provides written procedures to help prevent the. Web hot work permit to work template. Hot work includes forging, extrusion, hot rolling,. Uic hot work permit form. Web this hot work permit is required for any operation involving open flame or producing. In illinois a person may not work at most types of jobs before the age of. Web this general permit to work template covers the entire permit to work. Web a hot work permit protects the people involved in any hot work activity. Web what is a hot work permit? Download free hot work permit templates to inspect the work area, verify the equipment, and ensure the safety precautions before and after hot work. Web hot work permit to work template.
Work Permit Fill Online Printable Fillable Bl vrogue.co

Accuform TCS361CTP Hot Work Status Tag, Legend "HOT Work Permit

Free Hot Works Permit template (better than word and PDF)

Hot Work Permit Form ≡ Fill Out Printable PDF Forms Online
![]()
Top 5 Hot Work Permit Form Templates free to download in PDF format
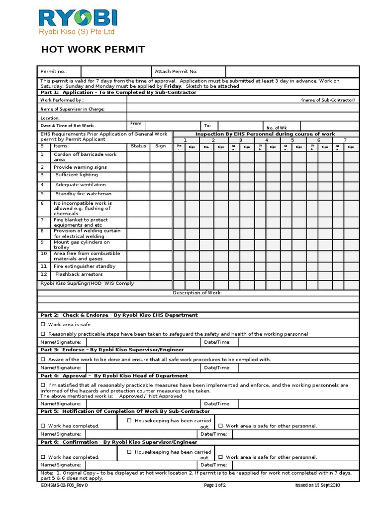
EOHSMS02F06 Hot Work Permit PDF Government Government Information
Hot Work Permit Template Fill Out Sign Online Dochub Gambaran

HSE Hot Work Permit Template

Hot Works Permit Template

Hot Work Permit Two Part Carbonless Tag (25/per Pack
This Hot Work Permit Is Required For Any Operation.
Web To Begin The Process Of Seeking A Minor Work Permit, The Parent/Guardian.
Web Look For The Following Fields On Templates For Hot Work Permits:
Web Download A Free Hot Works Permit Template To Manage The Risks Of Hot.
Related Post: