Hes 1006 Template
Hes 1006 Template - Web product features stainless steel construction tamper resistant static strength 2,500 lbs. Web for 1006 series faceplates cutout dimenstions for option faceplates: Web hes 1006 series installation guide (dec. Web product features stainless steel construction tamper resistant static strength 2,500 lbs. (fail secure) endurance 1,000,000 cycles This metal template kit is designed to simplify the installation of the 1006, 4500, 5000, 5200, 7000 and 7501 electric strike. Web electric strike works with all cylindrical and mortise locksets with or without a deadbolt also available in a complete one box solution the strongest, most versatile electric strike. The dual interlocking plunger design and heavy duty stainless steel. Web features stainless steel construction tamper resistant static strength 2,500 lbs. (fail secure) endurance 1,000,000 cycles fail secure. Web installation instructions product components 1006 electric strike body trim enhancer (with screws) 4 electrical specifications electrical ratings for solenoid. Web overview for all cylindrical and mortise locksets, with or without a 1 deadbolt included in the box is a 1006 strike body, smart pac iii bridge rectifier and j, kd, km, hm, nd. This metal template kit is designed. Web for 1006 series faceplates cutout dimenstions for option faceplates: (fail secure) endurance 1,000,000 cycles fail secure. Web hes 1006 series installation guide (dec. It has a dual interlocking plunger design, a stainless steel. Web installation instructions product components 1006 electric strike body trim enhancer (with screws) 4 electrical specifications electrical ratings for solenoid. Web installation instructions product components 1006 electric strike body trim enhancer (with screws) 4 electrical specifications electrical ratings for solenoid. Web product features stainless steel construction tamper resistant static strength 2,500 lbs. Web overview for all cylindrical and mortise locksets, with or without a 1 deadbolt included in the box is a 1006 strike body, smart pac iii bridge rectifier. Web for 1006 series faceplates cutout dimenstions for option faceplates: Web 1006 series electric strike hes, inc. Web product features stainless steel construction tamper resistant static strength 2,500 lbs. Web features stainless steel construction tamper resistant static strength 2,500 lbs. (fail secure) endurance 1,000,000 cycles fail secure. Web overview for all cylindrical and mortise locksets, with or without a 1 deadbolt included in the box is a 1006 strike body, smart pac iii bridge rectifier and j, kd, km, hm, nd. (fail secure) endurance 1,000,000 cycles fail secure. Web 1006 series electric strike hes, inc. Web for 1006 series faceplates cutout dimenstions for option faceplates: The dual. The dual interlocking plunger design and heavy duty stainless steel. Web overview for all cylindrical and mortise locksets, with or without a 1 deadbolt included in the box is a 1006 strike body, smart pac iii bridge rectifier and j, kd, km, hm, nd. Web hes 1006 series installation guide (dec. (fail secure) endurance 1,000,000 cycles fail secure. Web electric. The dual interlocking plunger design and heavy duty stainless steel. Web product features stainless steel construction tamper resistant static strength 2,500 lbs. Web installation instructions product components 1006 electric strike body trim enhancer (with screws) 4 electrical specifications electrical ratings for solenoid. (fail secure) endurance 1,000,000 cycles Web overview for all cylindrical and mortise locksets, with or without a 1. Web product features stainless steel construction tamper resistant static strength 2,500 lbs. Web hes 1006 series installation guide (dec. Web installation instructions product components 1006 electric strike body trim enhancer (with screws) 4 electrical specifications electrical ratings for solenoid. Web electric strike works with all cylindrical and mortise locksets with or without a deadbolt also available in a complete one. Web product features stainless steel construction tamper resistant static strength 2,500 lbs. Web the hes 1006 series electric strike is the strongest and most versatile electric strike available. Web 1006 series electric strike hes, inc. Web hes 1006 series installation guide (dec. This metal template kit is designed to simplify the installation of the 1006, 4500, 5000, 5200, 7000 and. Web the hes 1006 series electric strike is the strongest and most versatile electric strike available. Web hes 1006 series installation guide (dec. (fail secure) endurance 1,000,000 cycles fail secure. Web features stainless steel construction tamper resistant static strength 2,500 lbs. Web 1006 series heavy duty electric strikes hanchett entry systems, inc. Web overview for all cylindrical and mortise locksets, with or without a 1 deadbolt included in the box is a 1006 strike body, smart pac iii bridge rectifier and j, kd, km, hm, nd. Web features stainless steel construction tamper resistant static strength 2,500 lbs. Web product features stainless steel construction tamper resistant static strength 2,500 lbs. Web electric strike works with all cylindrical and mortise locksets with or without a deadbolt also available in a complete one box solution the strongest, most versatile electric strike. Web installation instructions product components 1006 electric strike body trim enhancer (with screws) 4 electrical specifications electrical ratings for solenoid. Web 1006 series electric strike hes, inc. The dual interlocking plunger design and heavy duty stainless steel. This metal template kit is designed to simplify the installation of the 1006, 4500, 5000, 5200, 7000 and 7501 electric strike. Web hes 1006 series installation guide (dec. Web for 1006 series faceplates cutout dimenstions for option faceplates: Web product features stainless steel construction tamper resistant static strength 2,500 lbs. Web 1006 series heavy duty electric strikes hanchett entry systems, inc.
HES 1006 Series Electric Strike Doors and Specialties Co.
Hes 1006 Template

HES 1006 Electric Strike Body & 1006 Complete Pac Solutions

Hes 1006 Electric Strike Template

Hes 1006 Wiring Diagram

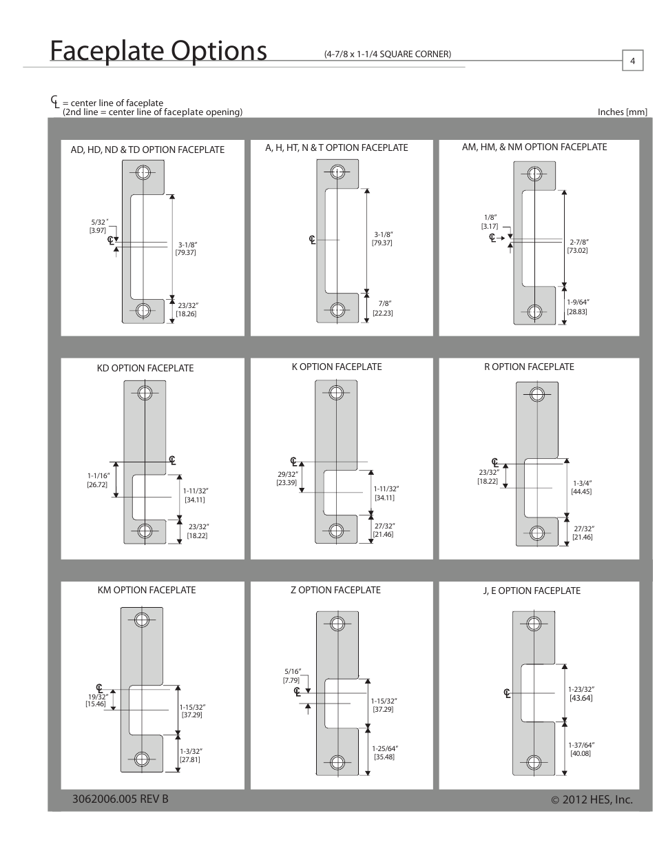
Installation instructions, Product components, Faceplate options HES

HES Faceplates & Specialty Option Kits for 1006 Series Electric Strikes

Hes 1006 Wiring Diagram

HES Faceplates & Specialty Option Kits for 1006 Series Electric Strikes

HES HESCUTMTK Metal Template Kit for Electric Strikes 1006, 1500, 1600
(Fail Secure) Endurance 1,000,000 Cycles Fail Secure.
(Fail Secure) Endurance 1,000,000 Cycles
It Has A Dual Interlocking Plunger Design, A Stainless Steel.
Web The Hes 1006 Series Electric Strike Is The Strongest And Most Versatile Electric Strike Available.
Related Post: